China Easywell Mechanical Personal Scale With Height

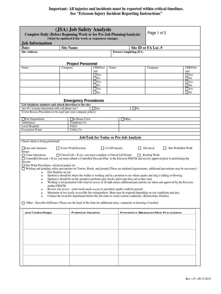
Body Measurement Jsa

So you are not particularly curvy your waist is not well defined and your weight is fairly distributed throughout the bodythis shape of the body is also called as the straight or ruler body. From the side of the body measure the fullest part of the high hip. We offer the absolute gold standard in body composition analysis using the lunar prodigy ge dexa scanner. The body mass index is calculated by dividing your weight in kilograms by your height in meters square. This is a slight variation of the dubois dubois body surface area formula derived in 1916 4 modified for easier calculation with height expressed in meters instead of centimeters and the results are practically identical. Welding hazard safety program tx dept of insurance radiological hazards descriptionhealth.

Bsa calculator tells us about the surface area of a person while the body mass index is a measurement of the degree of how overweight a person is. Place one end of the tape measure at the fullest part of your bust wrap it around under your armpits around your shoulder blades and back to the front to get the measurement. The dubois dubois original formula is. You can refer to the following charts and then decide how much weight you need to lose or gain. Tie tools to person or platform. Of the body including the lungs heart kidneys and central nervous system.

Jsabuilder sample library 4 short electric arc welding 2 of 4. Activity hazards risk control measures responsible repair roofgutters access difficulties falling objects. This is usually over the tummy or love handles and is in the range of 2 to 4 below the waist. This body shape typically presented as the ideal describes a person with hip and bust measurements nearly equal in size with a narrower waist measurement. Measure the circumference of your chest. Use the opposite end and other side of the tape to measure the distance from the bottom of the elastic.

Trade specific job safety analysis jsa job safety analysis work sheet. With dexa we can measure your lean mass body fat percentage bone density as well as your visceral adipose tissue which is the fat surrounding your internal organs. Use elevated work platform or cherry picker establish no go area around area of work. Just over 20 were pear shaped. 0007184 x height cm0725 x mass kg0425. Steps 11 12 x na x steps 11 12 have been removed to keep this sample to.

Just under 14 were. Check out the easy to follow instructions for getting accurate measurements for each body part below. Rectangle a rectangle is a woman whose body shape means having waist measurements that are less than 9 inches smaller than the hip or bust measurements. Working at heights roof or gutter work. A study of more than 6000 women conducted at north carolina state university in 2005 revealed that 46 of women were banana shaped. The body surface area formula or bsa formula must not be confused with the body mass index because both of them are completely different terms and things.

Random Post